CAD/Drawings

CAD Drawings for Welding and Forging Workshops

Clear drawings that work in practice

CC Metall AB assists welding and forging workshops with clear CAD documentation for quotes, customer approval, manufacturing, and assembly.

We produce drawings that make it easier to go from idea to finished product. The goal is to reduce misunderstandings, save time in the workshop, and create a better flow between customer, production, and assembly.

Whether you need help with a single drawing or want an external drawing resource to support you continuously, we adapt the work to your needs.

Approval Drawings

When you want to show the customer exactly what will be manufactured before order or production, we can create clear approval drawings.

This is suitable when you need:

- clear dimensions and views for customer approval

- documentation for quotes or order confirmations

- simpler 3D views to clarify the solution

- revisions based on customer feedback

With the right approval drawing, it becomes easier to get clear approval before manufacturing begins.

Manufacturing Drawings

We produce manufacturing drawings that work directly in production.

This may include:

- detailed drawings

- assembly drawings

- dimensioning for manufacturing

- material specifications

- welding notes

- cut dimensions and other production documentation

Clear drawings reduce questions in the workshop and make it easier to work faster and safer.

Assembly Documentation

When clear documentation for on-site assembly is needed, we assist with drawings that simplify installation.

We can provide:

- assembly views

- hole patterns

- fastening sketches

- inspection dimensions

- heights and placements

- documentation for smoother assembly

Good assembly documentation reduces the risk of errors and unnecessary on-site adjustments.

3D Modeling in CAD

For projects where you want to visualize the solution more clearly before manufacturing begins, we offer 3D modeling in CAD.

This is especially suitable for:

- custom forging

- customized solutions

- objects with multiple angles and levels

- projects where fit and overall integrity are important

The 3D model can then be used as a basis for approval drawings, manufacturing drawings, and assembly documentation.

Redrawing from Sketch, Photo, or Old Documents

If you have an old document, a hand sketch, or just some dimensions and pictures, we can help you convert it into clear CAD drawings.

We assist with:

- redrawing from sketch

- digitalization of old drawings

- CAD documentation from photos and dimensions

- structuring unclear documentation

This makes it easier to move forward even when the initial documentation is incomplete.

Changes and Revisions

Projects often change along the way. Drawings then need to be updated quickly and clearly.

We assist with:

- adjustment of existing drawings

- updating dimensions and details

- new versions with clear revision history

- quick assistance with changed customer requirements

This saves time and prevents you from having to start over.

External Drawing Department for Welding and Forging Workshops

Do you need ongoing help but don't want to hire your own CAD drafter or designer?

CC Metall AB can act as a flexible external drawing resource when you need:

- relief during high workload

- help with quotation documents

- drawings before production

- quick changes

- support in ongoing projects

This is a convenient way to access drawing expertise without building your own internal drawing department.

Why Workshops Choose to Get Help with Drawings

Good drawing documentation isn't just about producing a drawing. It's about making the entire business process easier.

With clear documentation, it becomes easier to:

- get customer approval faster

- reduce questions in the workshop

- avoid misunderstandings

- reduce errors in production and assembly

- save time in every project

- create a better workflow from quote to finished product

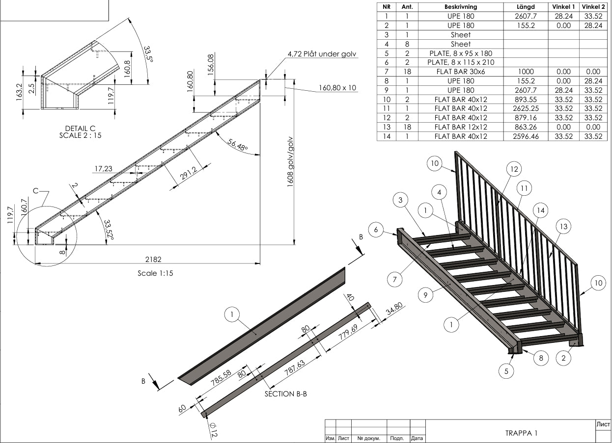
Common Projects

We often assist with drawing documentation for:

- railings

- stairs

- gates

- balconies

- steel components

- platforms

- brackets

- custom forging

- customized metal structures

Do you need help with CAD drawings?

If you need approval drawings, manufacturing drawings, or ongoing drawing support in your business, please contact CC Metall AB.

We assist welding and forging workshops that want to work more efficiently with clear documentation that works in practice.

Contact us to discuss your project.

Export:

DXF Files (*.dxf),

Autodesk Fusion Archive Files (*.f3d),

3MF Files (*.3mf),

Autodesk Inventor 2024 Files (*.ipt),

DWG Files (*.dwg),

FBX Files (*.fbx),

IGES Files (*.igs*.iges),

 OBJ Files (*.obj),

SAT Files (*.sat),

SketchUp Files (*.skp),

SMT Files (*.smt),

STEP Files (*.stp*.step),

STL Files (*.stl)

USD Files (*.usdz)

Kontaktformulär